For Sale

$749,900

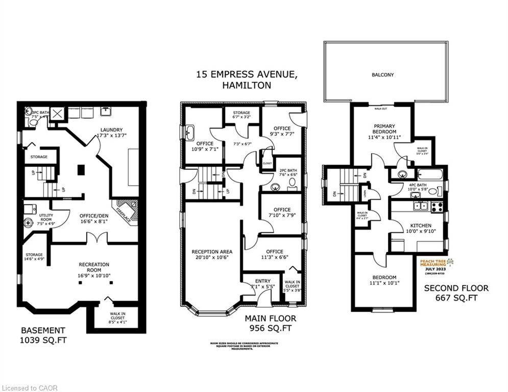
15 Empress Avenue, Hamilton, ON L9A 1M1

2 Beds 2+1 Baths

Remarks

This is a great opportunity to own a home that you can live in and either lease the main floor to a professional business while you enjoy 2 floors as your home, or use the main floor for your own business. This is a different kind of ownership that has more upfront cost, but the payoff could be huge in future by having a home and business in one building, or allowing a professional business tenant to help pay down the mortgage. This property has the best of both worlds being on the edge of commercial Upper James St and the edge of a great residential area with large Bruce Park just down the street. The down payment is higher at 35% - 50% and because it is mixed-use residential/commercial and HST is applied to the purchase price. These costs are the "cost of doing business" for this kind of investment home/business and ownership. Current owners ran a professional business in the home for over a decade, and, as such, the property has been well cared for. Previous ownership used the home as a live/work environment whereby the main floor was a doctor's office and the owner lived on the 2nd and lower level. Great location just off of Upper James St on Hamilton mountain, commercial zoning, could be live/work or a mixed commercial/residential, buy and hold opportunity for investors. New roof (shingles and plywood) November 2023. Freshly painted throughout. Updates in 2nd floor bathroom August 2024 (tub added and sink replaced) and kitchen includes eat-at counter station, stove added, light fixture replaced, and new fridge August 2024.

Inclusions:

Built-in Microwave,Dryer,Refrigerator,Stove,Washer,Window Coverings,Built-In Microwave, Dryer, Fridge, Stove, Washer, Window Coverings.

Property Summary

  • Lot Frontage: 41.09 Feet
  • Lot Depth: 116.2 Feet
  • No. of Parking Spaces: 6
  • Floor Space (approx): 2662 Square Feet
  • Built in: 1950
  • Bedrooms: 2
  • Bathrooms (Total): 2+1
  • Zoning: C5

Property Features:

  • Architectural Style:
    Two Story
  • Basement:
    Separate Entrance , Full , Finished
  • Construction Materials:
    Brick
  • Cooling:
    Window Unit(s)
  • Exterior Features:
    Balcony
  • Fireplace Features:
    Gas , Recreation Room
  • Heating:
    Natural Gas , Radiant
  • Interior Features:
    High Speed Internet , Ceiling Fan(s) , In-law Capability , Water Meter
  • Acres Range:
    < 0.5
  • Driveway Parking:
    Outside/Surface/Open
  • Laundry Features:
    In Basement
  • Lot Features:
    Urban , Irregular Lot , Paved , Airport , High Traffic Area , Highway Access , Library , Major Highway , Park , Playground Nearby , Public Parking , Public Transit
  • Parking Features:
    Asphalt
  • Road Frontage Type:
    Municipal Road
  • Roof:
    Asphalt Shing
  • Security Features:
    Carbon Monoxide Detector(s) , Smoke Detector(s)
  • Sewer:
    Sewer (Municipal)
  • Utilities:
    Cable Connected , Electricity Connected , Garbage/Sanitary Collection , Natural Gas Connected , Recycling Pickup , Street Lights , Phone Connected
  • Water Source:
    Municipal-Metered
  • Window Features:
    Window Coverings

Rooms

  • Living:
    Level: Main Level 6.35 X 3.20
  • Bathroom:
    Level: Main Level 2.29 X 1.98
  • Office:
    Level: Main Level 2.39 X 2.36
  • Office:
    Level: Main Level 3.43 X 1.98
  • Eat-in Kitchen:
    Level: 2nd 3.05 X 3.00
  • Master Bedroom:
    Level: 2nd 3.45 X 3.33
  • Office:
    Level: Main Level 2.82 X 2.31
  • Office:
    Level: Main Level 3.28 X 2.16
  • Bathroom:
    Level: Basement 2.26 X 1.22
  • Bedroom:
    Level: 2nd 3.38 X 3.07
  • Recreation Room:
    Level: Basement 5.11 X 3.30
  • Bathroom:
    Level: 2nd 2.29 X 1.98

Office Listing: 

Kimberley Maclean Sales Representative

Lifestyle
Neighbourhood Info
susan bernard

susan bernard

Sales Representative

Phone:  905.648.4451

Mobile:  905.928.0800

Fax:  905.648.7393

logo

Royal LePage State Realty, Brokerage (Independently owned and operated)

1122 Wilson STREET WEST
Ancaster,  ON L9G3K9

Get More Info

Get More Info

Book a tour